In Vendita

NUOVE VILLE UNIFAMILIARI

Via Logaccio, Saltrio, Varese

€590.000

3 Camere
3 Bagno
276 m²
  • Stanze da letto: 3 Camere
  • Bagni: 3 Bagno
  • Square:276 m²
  • Tipologia immobile:Villa

A Saltrio in Via Logaccio, a 500 m dalla dogana di Arzo, in un moderno complesso residenziale in fase di realizzazione, si propongono in vendita nuove ville singole tutte disposte interamente su un unico livello abitativo, libere su quattro lati, con autorimessa doppia, posti auto e giardino privato di circa 500 mq. 
Materiali e tipologie edilizie volte a soddisfare tutti i requisiti di estetica, funzionalità e comfort abitativo. Classe energetica prevista A4/A3 (impianto fotovoltaico da 4 KW, pompa di calore, riscaldamento a pavimento diviso a zone, serramenti in PVC doppio vetro con pellicola basso emissiva, cappotto termico 14 cm). 
Possibilità di personalizzare la disposizione interna di ogni villa in base ai propri gusti ed esigenze. 
Le finiture interne verranno scelte direttamente dall’acquirente su un ampio Capitolato proposto! 
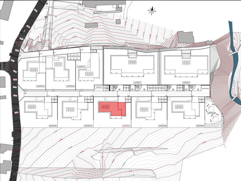
Il complesso prevede la realizzazione di otto ville, due piccole palazzine di sei appartamenti ciascuna, posti auto scoperti privati, piazzole con posti auto pubblici, area di manovra e parco verde attrezzato pubblico. 
Consegna fine 2026 
Elenco ville e prezzi: 
- LOTTO VILLA ‘’A’’ VENDUTA; 
- LOTTO VILLA ‘’B’’ VENDUTA; 
- LOTTO VILLA ‘’C’’ VENDUTA; 
- LOTTO VILLA ‘’D’’ EURO 590.000, 00; 
- LOTTO VILLA ‘’E’’ EURO 590.000, 00; 
- LOTTO VILLA ‘’F’’ EURO 590.000, 00; 
- LOTTO VILLA ‘’G’’ EURO 590.000, 00; 
- LOTTO VILLA ‘’H’’ EURO 590.000, 00. 

DESCRIZIONE VILLA F: 
Villa unifamiliare con ingresso su ampia zona giorno openspace, tre camere da letto di cui la matrimoniale con cabina armadio e bagno privato, ulteriori due bagni, locale lavanderia, locale tecnico, portico, autorimessa doppia in larghezza e giardino di 530 mq. Completano la proprietà due posti auto scoperti a fianco dell'ingresso carraio. 

Disegni e capitolato consultabili presso i nostri uffici in Arcisate (VA) Via Europa n. 4. 

  • Posto Auto
  • Giardino
  • Locale lavanderia
  • Box
  • Riscaldamento autonomo
  • Serramenti in PVC con doppio vetro
  • Cappotto termico
  • Box doppio
  • Porta blindata
  • Cancello elettrico

Via Logaccio, Saltrio, Varese

Dettagli Attestato di Prestazione Energetica


 

Vuoi richiedere più informazioni?

Chiamaci o vienici a trovare in sede
Contattaci